خرائط منازل 5 * 20 ؛ اصبح توجد الكثير من المساحات الضيقه التي لاتسمح ببناء منازل يسهل العيش بها ، ولكن مع توافر المهندس ذات الخبرات السابقه في التصميم المعماري و المهندس ذو الخبره العاليه في التصميم الانشائي ، يصبح الامر سهلا جداا بالنسبه اليهم ، حيث ان لديه القدره علي تصميم كافه المنشات السكنيه من اكبر مساحه وحتي اصغر مساحه ، مع امكانيه تنفيذ كافه الطلبات التي يريدها المالك بعد النقاش معه حول ترتيب اوليات تلك الطلبات بالنسبه اليه ، مما يجعل المهندس يسير علي الطريق الصحيح عند التصميم المنشا الخاص بالمالك . وسوف نوضح من خلال تلك المقاله بعض التصميمات التي تناسب كافه المساحات الضيقه التي لا تتعدي مساحتها 100 متر مربع . و ايضا يمكن التعرف علي المزيد من التصميمات الهندسيه التي تناسب كافه المساحات عبر موقع تدوينات .
خرائط منازل 5 * 20 :
تعتبر تلك المساحه ليست بالضيقه ، حيث انها توفر 100 متر مربع تقريبا ولكن طولها اكثر بكثير من عرضها مما يجعلها عند التقسيم عباره عن طرقه طويله و جميع الغرف والحمام والمطبخ في جهه واحده ، مما يزيد من انزعاج المالك عندما يسكن داخل البناء وكانه داخل شارع طويل ، ولكن مع تواجد المهندس ذو الخبره الكبيره في تقسيم تلك المساحات الغير مناسبه طولها مع عرضها ، يحصل المالك علي افضل تصميم قد يشعره بالراحه تجاه تلك المنزل .
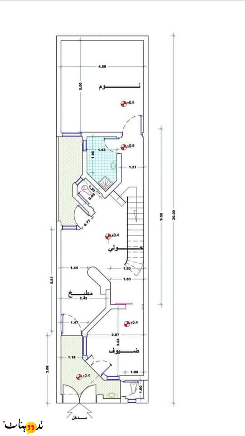
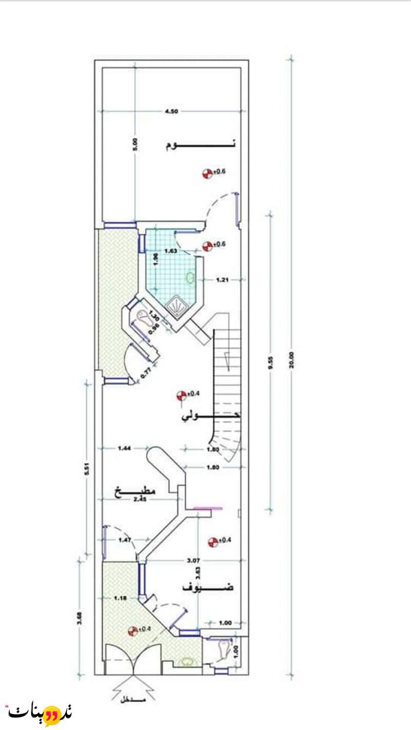
1- التصميم الاول لمنزل 5 * 20:
- يتكون من غرفه نوم رئيسيه و مطبخ وحمام و غرفه استقال للضيوف و جراج لحفظ السياره .
يمكنك معرفه الكثير من خلال الموقع عن : خرائط منازل صغيرة 80 متر
2 – التصميم الثاني لمنزل 5 * 20 :
- و يتكون من غرفه نوم و غرفه استقبال و غرفه السفره و حمام و مطبخ و ومنور من اجل التهويه .
يمكنك معرفه الكثير من خلال الموقع عن : خرائط منازل 3 غرف نوم
3 – التصميم الثالث لمنزل 5 * 20 :
- و يتكون من غرفه نوم رئيسيه و غرفه نوم للاطفال و غرفه استقبال و مطبخ و حمامين صغيرين و منور من اجل التهويه .
يمكنك معرفه الكثير من خلال الموقع عن : تصاميم بيوت صغيرة 150 متر
4 – التصميم الرابع لمنزل 5 * 20 :
- و يتكون من غرفه نوم رئيسيه و غرفه استقبال و حمام خاص بغرفه النوم وحمام خاص بالضيوف و مطبخ امريكي مفتوح علي غرفه الاستقبال و منور خاص بالتهويه .
يمكنك معرفه الكثير من خلال الموقع عن : تصاميم بيوت اندلسية



