خرائط منازل 3 غرف نوم ؛ يهتم الناس عند اختيار منازلهم بان تكون مناسبه لطبيعه حياتهم بشكل كبير ، حيث يقومون بانتقاء كل شئ متواجد داخل المنزل بحيث يتوافق مع حياتهم ، و يسعون دائما للاستفاده بكل جزء من اجزاء المنزل علي النحو الافضل . لذلك يتوجهون الي المهندسين المعماريين و مكاتب الديكور لتصميم منازلهم علي اذواقهم الخاصه مع الاستعانه ببعض اذواق المعماريين . وقد وفرت العديد من شركات الهندسه في وقتنا الحاضر الكثير من البرامج التي يستخدمها المهندس لتقسيم قطعه الارض و توزيع الاثاث داخلها بشكل مناسب لمساحه كل غرفه . و لم تتوقف علي ذلك فقط بل وفرت ايضا برامج مختصه لتصميم المنازل 3d لتمكن اصحاب المنزل من تخيل كل شئ داخل المنزل كانه يعيشون داخله قبل البدء في وضع الاساس الخاص به . ومن خلال تلك المقاله سوف نوضح بعض ( خرائط منازل 3 غرف نوم ) .
خرائط منازل 3 غرف نوم :
يهتم المهندسين عند تقسيم اي قطعه ارض ببعض الاساسيات الازمه لشعور الفرد بالراحه داخل المنزل ، لذلك يحرص المهندس علي الجلوس مع المالك و معرفه احتياجاته المتنوعه ، وكذلك ايضا اهم الاشياء التي يريد تواجدها داخل المنزل بضروره و الاشياء التي من الممكن الاستغناء عنها . ثم يقوم المهندس بالكثير من الافتراضات الهندسيه لتصميم قطعه الارض ، مع مراعاه توافر ماطلبه المالك داخل جميع التصميمات ، ثم يقوم المالك باختيار التصميم المطلوب واعطائه للمهندس المدني المختص بالتنفيذ طبقا للرسومات المستلمه من المالك .
الاساسيات التي يهتم بها المهندس عند تصميم المنازل :
- معرفه اتجاه الرياح الخاص بقطعه الارض حتي لا تنتشر روائح الطعام عن استخدام المطبخ .
- تحديد حدود كل جار للمحافظه علي عدم تخطي تلك الحدود .
- تحديد عدد الغرف التي يحتاجها المالك و مدي امكانيه توافرها داخل تلك المساحه .
- معرفه عدد الحمامات التي يحتاجها المالك وامكانيه الغاء احدهم وتنفيذ اخر .
- معرفه نوعيه الاثاث التي يفضل المالك وضعه اخل المنزل .
- مدي احتياج المالك لجراج لحفظ السياره و مدي امكانيه الاستغناء عنه .
- معرفه عدد الاجهزه التي سوف يتم وضعها داخل المطبخ .
- تحديد مدي احتياج المالك لغرف خاصه بالملابس فقط و امكانيه الغائها من التصميم .
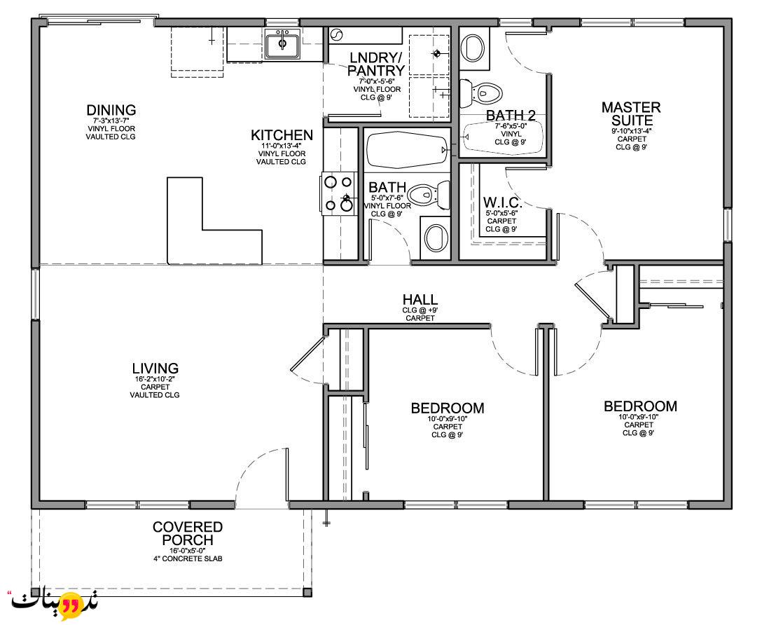
اليك احدث الخرائط التي تناسب لبناء منزل يحتوي علي 3 غرف نوم ………
يمكنك ايضا معرفه الكثير من خلال الموقع عن : تصاميم بيوت اندلسية ، تصاميم بيوت صغيرة 150 متر











